


TENT is a facility designed for students and international professionals who embrace flexible workstyles, often referred to as digital nomads. It provides an opportunity for individual work preferences while fostering a sense of community.
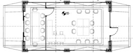
The structure of TENT, resembling an open tent, promotes a collaborative working environment through its unconventional interior layout. The building, constructed with modern timber framing, accommodates up to ten workstations, an adjacent seminar room for uninterrupted meetings, and a cosy tea kitchen for relaxation. Featuring a trapezoidal design, the architecture surprises with a spacious interior and open window fronts on all sides, allowing abundant natural light and unobstructed views of the green courtyard. This design seamlessly connects the indoor and outdoor spaces, creating an optimal setting for a relaxed and informal working atmosphere.








2017/18 l design by anke kirchhoff, hannah thiel, lina hülsmann l supervisor: prof. antje krauter l mainz, de
© lina hülsmann